436 Westwood Dr

Sparta, TN 38583
$497,900
$188 / sq ft

Gina Butler

9315108227
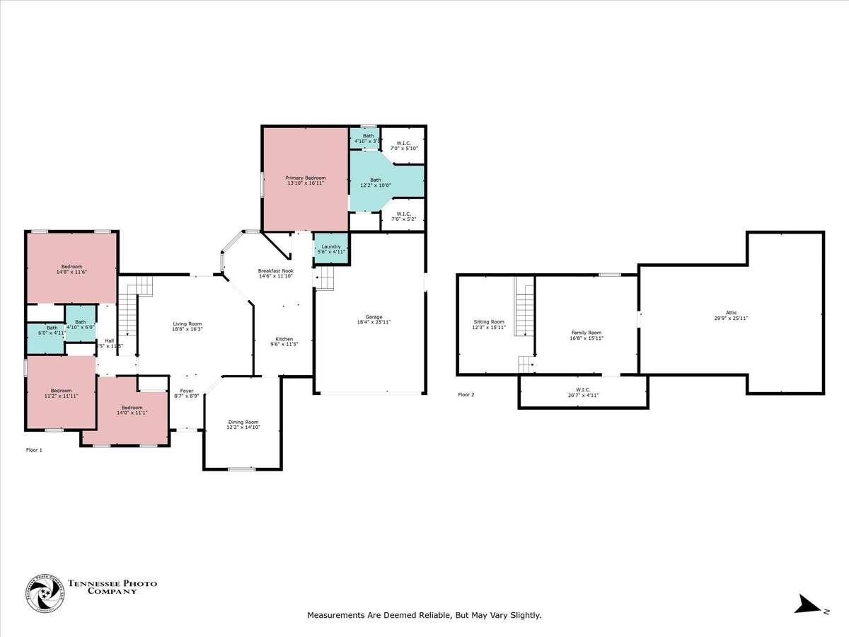
  • Area 2,643 sq ft
  • Bedrooms 3
  • Bathrooms 2

Description

Price Improvement. Spacious 3BR/ 2BA Brick Home with Bonus Rooms, Office & Pool on Large Lot!
Welcome to this charming brick home nestled in a peaceful country subdivision! This spacious property offers 3 bedrooms and 2 full baths with two additional flex rooms that can easily be used as extra bedrooms, a home office, library, craft space, or guest quarters — perfect for a growing family or multi- use living.
The home boasts a cozy den, a dedicated office space, and a sitting room, giving you plenty of options to customize your living areas. Enjoy the peace of mind of a brand- new roof. Step outside to your private backyard oasis featuring a sparkling pool — ideal for entertaining or relaxing on warm country evenings.
Situated on a large lot with mature trees and ample yard space, you’ll love the privacy and tranquility while still being within easy reach of town amenities.
This home offers the perfect blend of space, flexibility, and country charm — schedule your showing today!

Details

  • MLS#: 2927994
  • County: White County, TN
  • Subd: West Wood Hts S/D
  • Stories: 2.00
  • Full Baths: 2
  • Bedrooms: 3
  • Built: 1998 / Existing
  • Lot Size: 1.630 ac

Utilities

  • Water: Public
  • Sewer: Septic Tank
  • Cooling: Central Air
  • Heating: Central

Public Schools

  • Elementary: Cassville Elementary
  • Middle/Junior: White Co Middle School
  • High: White County High School

Property Information

  • Constr: Brick
  • Floors: Carpet, Wood, Tile
  • Garage: 2 spaces / attached
  • Parking Total: 2
  • Basement: None, Crawl Space
  • Waterfront: No
  • Taxes: $1,201

Appliances/Misc.

  • Fireplaces: No
  • Drapes: Remain
  • Pool: Above Ground

Features

  • Electric Oven
  • Electric Range
  • Dishwasher
  • Refrigerator

Location

Directions

Hwy 70 to Old Kentucky Rd. Right onto Old Smithville Hwy. Left on Westwood Dr.