$579,900
$161 / sq ft
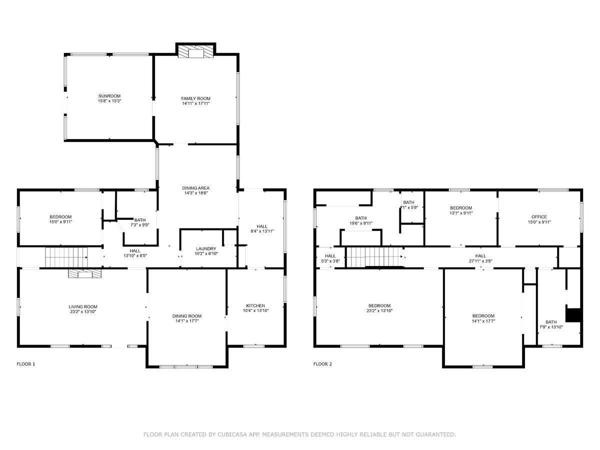
  • Area 3,602 sq ft
  • Bedrooms 5
  • Bathrooms 3

Description

Take advantage of this a rare opportunity to own a piece of history! This stunning home featuring 5 spacious bedrooms and 3 full baths, offers a unique blend of classic charm and modern comfort. With formal dining and living rooms, a spacious family room, and a butler’s pantry, this home is perfect for entertaining. The property has 10- foot ceilings downstairs, two gas fireplaces, and beautiful hardwood and tile flooring throughout. Massive windows flood the home with natural light, and a four- season sunroom allows you to enjoy the space year- round.

The exterior is just as impressive, with a 4- car garage and a fenced backyard for added privacy and outdoor enjoyment. Located just two blocks from the square and the newly revitalized downtown business district, you’ll enjoy the convenience of walking to restaurants, shopping, and banking.

With 3, 600 square feet, including a basement with a walkout door and a fully floored attic for extra storage, this home has everything!

Details

  • MLS#: 2950797
  • County: Dekalb County, TN
  • Style: Traditional
  • Stories: 2.00
  • Full Baths: 3
  • Bedrooms: 5
  • Built: 1949 / Existing
  • Lot Size: 0.380 ac

Utilities

  • Water: Public
  • Sewer: Public Sewer
  • Cooling: Central Air
  • Heating: Central

Public Schools

  • Elementary: Northside Elementary
  • Middle/Junior: DeKalb Middle School
  • High: De Kalb County High School

Property Information

  • Constr: Brick
  • Roof: Asphalt
  • Floors: Wood, Tile
  • Garage: 4 spaces / detached
  • Parking Total: 4
  • Basement: Partial, Unfinished
  • Fence: Back Yard
  • Waterfront: No
  • View: City
  • Taxes: $1,918

Appliances/Misc.

  • Fireplaces: 2
  • Drapes: Remain

Features

  • Electric Oven
  • Electric Range

Location

Directions

From Broad Street turn north onto S. Mountain St then left on West Main. Second house on left.