Elegant 4- Bedroom Home with Bonus Room & 3- Car Garage in Grove Point
Welcome to this beautifully maintained 4- bedroom, 2. 5- bath home located in the highly sought- after Grove Point subdivision. Built in 2010 and offering approximately 2, 850 square feet, this home combines comfort, style, and a long list of thoughtful upgrades that make it truly move- in ready.
Key Highlights
Whole- house backup generator ( installed 2025)
Security system with 8 cameras
2024 stainless steel kitchen appliances
New faucets in kitchen and bathrooms
New luxury vinyl plank flooring on the main level
Washer & dryer convey
Chair lift for easy access to the second floor- can be conveyed or sellers can have it removed.
Air curtain from garage to entry door ( keeps out insects)
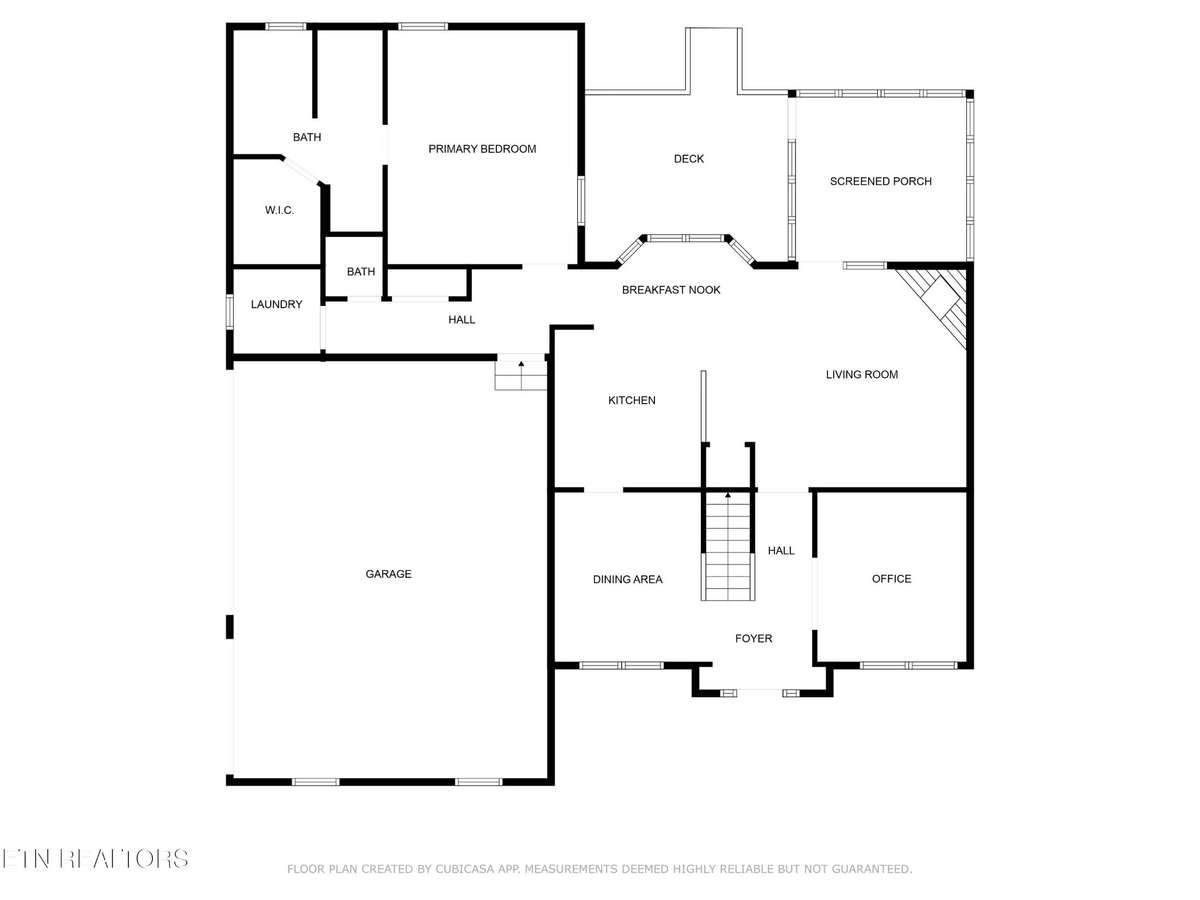
Step onto the inviting covered front porch and enter a main level filled with warmth and character. The open living area features a cozy gas fireplace, ceiling fans, and new luxury vinyl flooring throughout the living room, kitchen, dining room, office, and hallways.
The kitchen is a chef' s dream, offering 2024 stainless steel appliances, a spacious pantry, and an eat- in breakfast area. Entertain guests in the formal dining room, complete with wainscoting and timeless details.
The main- level primary suite is a true retreat, featuring vaulted ceilings, a walk- in closet, ceiling fan, and a luxurious ensuite bath with a newer oversized walk- in shower and double vanity. The main level also includes a dedicated office with crown molding and a convenient laundry room.
Upstairs, you' ll find three generously sized bedrooms—each with plush carpet, ceiling fans, and ample closet space—along with a large bonus room perfect for a playroom, media room, or hobby space.
Enjoy outdoor living on the open deck or in the screened- in porch, ideal for relaxing or entertaining. The oversized 3- car garage provides abundant storage and features an air curtain for added comfort and cleanliness.
From Halls Take Andersonville Pike turn right onto Mccloud Rd Turn Left onto Greenscape Dr to right onto Edenfiled house on right