8988 Big Oak Dr

Murfreesboro, TN 37129
$637,000
$195 / sq ft

Kerri Marie Nasser

2088914529
  • Area 3,273 sq ft
  • Bedrooms 3
  • Bathrooms 3

Description

Discover this beautifully maintained 3- bed, 3- bath, 3, 273 SF home with 2 flex rooms—ideal for a 5- bed layout, dual offices, or an office & bonus room—offering flexibility & comfort for multi- generational living, remote work, or hosting guests with ease. New lifetime- warrantied composite shingle roof & dual HVAC systems, both just 3 years old, ensure comfort & peace of mind. A full ADT security system with upgraded smoke & carbon monoxide detectors adds an extra layer of safety. Inside, enjoy brand- new ceiling fans with integrated lighting, energy- efficient LED recessed lighting with built- in night lights, fresh accent wall paint & a fully renovated hall bath. The kitchen features a dedicated coffee bar with hidden outlets tucked inside the adjacent cupboard—perfect for keeping your morning routine stylish & clutter- free. Step outside to an entertainer’s dream: an above- ground pool with oversized gravel filtration meets a resurfaced deck with an inset space ideal for a hot tub or future lower- level expansion. The screened- in porch includes a ceiling fan, lighting & outlet plugs—ideal for a cozy outdoor living room. Edison lighting adds ambiance across the deck & front firepit area, nestled under mature trees with a charming brick layout. 2 elderberry bushes line the front walk, while 5 fruit trees offer seasonal harvests & orchard charm. The expansive driveway accommodates guests with ease, & a detached shed adds extra storage. RV hookups & an EV charging plug make this home future- ready.
Located in North Murfreesboro, this home offers easy access to outdoor recreation, including Cedars of Lebanon State Park, Stones River Greenway, Walter Hill Park & river access points like Jefferson Springs Recreation Area. Whether you' re into biking, walking, disc golf, or soaking in Tennessee’s natural beauty, this home blends modern convenience with country charm.

Virtual Tour

Details

  • MLS#: 2990752
  • County: Rutherford County, TN
  • Subd: Juniper Acres
  • Stories: 2.00
  • Full Baths: 3
  • Bedrooms: 3
  • Built: 1994 / Existing
  • Lot Size: 0.640 ac

Utilities

  • Water: Public
  • Sewer: Septic Tank
  • Cooling: Ceiling Fan( s), Central Air, Dual, Electric
  • Heating: Central, Dual, Electric

Public Schools

  • Elementary: Walter Hill Elementary
  • Middle/Junior: Siegel Middle School
  • High: Siegel High School

Property Information

  • Constr: Vinyl Siding
  • Roof: Shingle
  • Floors: Carpet, Wood, Tile, Vinyl
  • Garage: No
  • Basement: Crawl Space
  • Waterfront: No
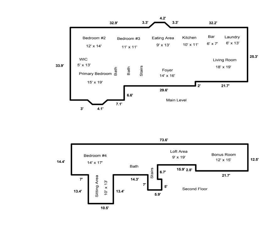
  • Living: 18x19
  • Dining: 9x13
  • Kitchen: 10x11
  • Bed 1: 15x19
  • Bed 2: 12x14
  • Bed 3: 11x11
  • Den: 12x15
  • Patio: Porch, Covered, Deck, Screened
  • Taxes: $1,985
  • Features: Smart Camera(s)/Recording

Appliances/Misc.

  • Fireplaces: 1
  • Drapes: Remain
  • Pool: Above Ground

Features

  • Electric Oven
  • Electric Range
  • Dishwasher
  • Dryer
  • Ice Maker
  • Microwave
  • Refrigerator
  • Stainless Steel Appliance(s)
  • Washer
  • Air Filter
  • Bookcases
  • Built-in Features
  • Ceiling Fan(s)
  • Entrance Foyer
  • High Ceilings
  • Pantry
  • Walk-In Closet(s)
  • High Speed Internet
  • Dual Flush Toilets
  • Windows
  • Thermostat
  • Sealed Ducting
  • Carbon Monoxide Detector(s)
  • Fire Alarm
  • Security System
  • Smoke Detector(s)

Location

Directions

Head east on TN-268 E toward US-231 S 52 ft; Turn left at the 1st cross street onto US-231 N 4.0 mi; Turn left onto Juniper Dr 0.2 mi; Turn left at the 1st cross street onto Big Oak Dr; Destination will be on the left