6914 Burkitt Rd

Antioch, TN 37013
$850,000
$322 / sq ft

Gina Sefton

6154568367
SO Much Potential on THIS Incredible 2.08 Acres with BASEMENT and NO HOA! Enjoy the FREEDOM to truly make this property YOUR OWN—park your RV, add a pool, garden, greenhouse or workshop & design the lifestyle that fits you best, without restrictions!
Welcome to COUNTRY-LIKE LIVING with CITY CONVENIENCE on this spacious 2.08-acre LEVEL homesite, offering plenty of ELBOW ROOM, beautiful surroundings, and the perfect backdrop for designing the retreat of your dreams!
The long, expansive driveway creates an impressive arrival experience while offering abundant parking for family and guests.
Enjoy a spacious living room with wide-plank hardwood floors, an elegant raised tray ceiling, and a fireplace that adds architectural appeal.
Crown molding with dentil trim detail, raised trey ceiling, wide plank floors and fireplace in elegant living room. Virtually staged photo for inspiration only and to showcase how space can be used and furnished.
The expansive living room showcases wide-plank flooring, a sophisticated raised tray ceiling, and a striking fireplace that anchors the space with style and comfort.
Perfect for hosting, this expansive living room offers the ideal setting for large gatherings, complete with wide-plank flooring, a raised tray ceiling, and a beautiful fireplace. Virtually staged photo for inspiration only.
Spacious living room, perfect for entertaining or relaxing with family.
Elegant wide-plank flooring with custom wood vents provides a sophisticated, tailored touch.
Spacious Kitchen, Breakfast Nook and Large Seating Bar
Virtually Staged Photo for Inspiration Only and to Showcase How Space Can Be Used and Furnished.
Granite Counter, Modern Tile Backsplash & Tile Flooring in Kitchen. All Appliances Remain.
Virtually Staged Photo for Inspiration Only and to Showcase How Space Can Be Used and Furnished.
Kitchen is centrally located between great room and living room and adjacent to dining room, providing a perfect flow for large gatherings and entertaining.
Virtually Staged Photo for Inspiration Only and to Showcase How Space Can Be Used and Furnished.
The kitchen shines with expansive granite countertops, a sleek linear glass mosaic tile backsplash, and large-format tile flooring for a modern, sophisticated look.
Double under-mount composite sink with stylish pullout faucet.
Ample cabinet and drawer storage with lazy suzan and pantry.
You’ll love the large dining room, breakfast nook, and kitchen bar seating—perfect for family meals and entertaining. Virtually Staged Photo for Inspiration Only and to Showcase How Space Can Be Used and Furnished.
Refrigerator and all appliances remain with home.
The dining room is perfect for holiday celebrations, dinner parties, and memorable family gatherings.
Huge family room with vaulted ceiling and exposed wood beams, creating a warm and inviting centerpiece for gatherings.
The great room impresses with a vaulted ceiling and gorgeous wood beams, providing the ideal gathering space for family and friends. Virtually staged photo for inspiration only and to showcase how space can be used and furnished.
Plenty of room for the whole family to spread out and enjoy time together in this huge family room, designed for comfort, connection, and everyday living.
Vaulted ceiling and wood beams highlight this huge family room, offering a spacious and dramatic gathering space. Virtually Staged Photo for Inspiration Only and to Showcase How Space Can Be Used and Furnished.
Perfect for large gatherings, this oversized great room features a vaulted ceiling, creating an open and inviting space for family and friends. Virtually Staged Photo for Inspiration Only and to Showcase How Space Can Be Used and Furnished.
Enjoy holiday and special gatherings in the dining room, which seamlessly connects to the kitchen, family room, and living room—making entertaining effortless and comfortable.
Entertain with ease in the open floorplan, where the seamless flow between kitchen, dining, and living spaces creates the perfect setting for gatherings of any size.
Separate living room with fireplace offers a cozy spot for quieter moments.
All living areas and bedrooms are conveniently located on the main level, offering easy accessibility and seamless everyday living.
This all-brick 3-bedroom, 3-bath home features all your everyday living spaces and bedrooms conveniently located on the main level.
The spacious primary bedroom accommodates a king-size bed and opens to the back deck, overlooking a large, private backyard—creating a serene retreat.
Primary bedroom features a generous walk-in closet, providing ample space for wardrobe organization and storage.
Primary bathroom with window, double sinks, ample cabinet & drawer space, tile floor & large linen closet.
Primary bathroom has spacious linen storage.
Enjoy natural light in your bathroom.
Virtually staged photo for inspiration only and to showcase how space can be used and furnished.
Virtually staged photo for inspiration only and to showcase how space can be used and furnished.
Virtually staged photo for inspiration only and to showcase how space can be used and furnished.
Virtually Staged Photo for Inspiration Only and to Showcase How Space Can Be Used and Furnished.
Laundry room with storage shelves. Washer and Dryer remain with home.
Back guest bedroom will fit a king bedd and large pieces of furniture.
Spacious guest room with walk-in closet.
The guest suite is fit for a king—literally! Spacious and designed for ultimate comfort.
Guest bedroom has spacious walk-in closet
Raised vanity with double sinks & tile floor in guest bathroom.
Guest bathroom has linen storage.
Dual sinks, tile floor, and designer faucets & hardware in guest bathroom.
Lots of added parking with 2 car basement garage, extended driveway with parking pad and detached 2 car garage.
With NO HOA, you’ll enjoy the FREEDOM to truly make this property YOUR OWN—park your RV, add a pool, garden, greenhouse, or workshop, and design the lifestyle that fits you best, without restrictive covenants!
Long, expansive tree-lined driveway offering privacy and a picturesque approach.Tons of possibilities await on this beautiful, LEVEL 2.08-acre property.
The detached garage is a fantastic bonus for anyone seeking EXTRA STORAGE or HOBBY SPACE while enjoying the property’s spacious, country-like setting.
An additional metal storage building adds even more versatility—ideal as a detached 2-car garage, workshop, or space for lawn equipment, tools, or recreational gear.
Additional 15x7 storage shed can house plenty of equipment, additional machinery and tools.
A perfect blend of space, comfort, and convenience in a serene, country-like setting.
Imagine hosting the next family reunion or wedding on your homestead! With 2.08 acres, there's tons of space, offering tons of possibilities!
Design the backyard oasis of your dreams in this expansive incredible yard!
Perfect setting to host outdoor celebrations and large gatherings!
Entertain effortlessly on your large back deck, perfect for gatherings with family and friends.
Enjoy breaking bread on your spacious back deck, taking in serene views of the expansive and spectacular backyard.
Savor meals on your back deck with stunning views of the large picturesque backyard.
Host unforgettable meals on your back deck, perfectly positioned to overlook the home’s expansive and spectacular backyard. Virtually Staged Photo for Inspiration Only and to Showcase How Space Can Be Used and Furnished.
2 car attached garage in basement.
Home equipped with chair lift from basement to main level or Seller will remove upon Buyer request.
Create the Home Gym of your Dreams in THIS Conditioned Basement which also features a Full Finished Bath! Virtually Staged Photo for Inspiration Only and to Showcase How Space Can Be Used and Furnished.
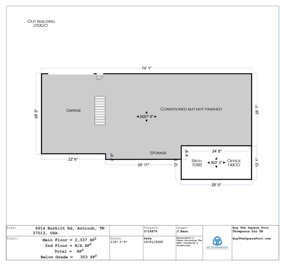
Approximately 1,300 sq. ft. of conditioned storage or expansion space in basement—perfect for a WORKSHOP, HOME GYM, or future finished area. Basement also includes finished office and full bath with shower.
Lots of added potential for recreation and hobby space in THIS large Conditioned Basement. Virtually Staged Photo for Inspiration Only and to Showcase How Space Can Be Used and Furnished.
Virtually Staged Photo for Inspiration Only and to Showcase How Space Can Be Used and Furnished.
12x10 Office in Basement — Also a Great Safe Area During Storms
12x10 Office, Hunting, or Safe Room in Basement.
Need an in house Conference Room — Use the Basement Office for a variety of purposes! Virtually Staged Photo for Inspiration Only and to Showcase How Space Can Be Used and Furnished.
Convert the Basement Office Into a "Man Cave" for Poker & Game Night! Virtually Staged Photo for Inspiration Only and to Showcase How Space Can Be Used and Furnished.
Basement Office can also be used as a Spa & Sauna Room or Safe Area during inclement weather. Virtually Staged Photo for Inspiration Only and to Showcase How Space Can Be Used and Furnished.
Basement equipped with full bath with shower & large linen storage closet.
Perfect set up with Basement Full Bath — Great for a quick cool down after a hard work out and fully equipped for guests.
Enjoy plenty of elbow room on this expansive, level parcel of land.
This gorgeous, LEVEL 2.08-acre property offers endless potential—picture hosting memorable family reunions, outdoor celebrations, or even a picturesque wedding right here at home!
Set back from the road, the long, sweeping driveway offers exceptional privacy and ample parking for gatherings.
Bask in spectacular sunsets from your rocking chair front porch, overlooking the beautiful scenery of the countryside.
A long, expansive tree-lined driveway welcomes you home.
Enjoy COUNTRY-LIKE LIVING with CITY CONVENIENCE on THIS spacious 2.08-acre homesite, offering plenty of ELBOW ROOM and beautiful surroundings.
A grand, extended driveway leads to the home and provides generous parking accommodations for multiple vehicles.
Welcome to 2.08 acres of private, unrestricted living, where NO HOA means the freedom to customize, expand, and enjoy the property your way.
NO HOA restrictions—means the freedom to live the way you want! All this, just MINUTES from shopping, dining, and everyday conveniences, with easy access to the interstate—offering the perfect blend of comfort, convenience, and room to breathe!
  • Area 2,640 sq ft
  • Bedrooms 3
  • Bathrooms 3

Description

Enjoy COUNTRY- LIKE LIVING with CITY CONVENIENCE on THIS spacious 2. 08- acre LEVEL homesite, offering plenty of ELBOW ROOM, beautiful surroundings and the perfect backdrop for designing the backyard retreat of your dreams! With NO HOA, you’ll enjoy the FREEDOM to truly make this property YOUR OWN—park your RV, add a pool, garden, greenhouse or workshop and design the lifestyle that fits you best, without neighborhood restrictive covenants! This all- brick 3- bedroom, 3- bath home features all your everyday living spaces and bedrooms conveniently located on the main level. The full basement expands your possibilities—featuring a 2- Car Garage, Full Bath and a flexible 14x10 Office or Safe Room during storms, along with approximately 1, 300 sq. ft. of conditioned storage or expansion space—perfect for a WORKSHOP, HOME GYM or future finished area. An additional metal storage building adds even more versatility—ideal for use as a detached 2- car garage, workshop or space to store lawn equipment, tools or recreational gear. It’s a fantastic bonus for anyone seeking EXTRA STORAGE or HOBBY SPACE while enjoying the property’s spacious, country- like setting. Enjoy hosting family meals and gatherings in this spacious layout which offers a large dining room, breakfast nook and kitchen bar seating. Expansive granite countertops, a sleek linear glass mosaic tile backsplash, and large- format tile flooring give the kitchen a fresh, modern- day feel that seamlessly blends style, function and sophistication. Incredible great room with vaulted ceiling and gorgeous wood beams provides plenty of space for the whole family to hang out and spend time together, while others can enjoy a more private setting in the separate living room by the fireplace. All this, just MINUTES from shopping, dining and everyday amenities—with easy access to the interstate, offering the perfect blend of comfort, convenience and room to breathe. Buyer to verify schools, taxes, and all pertinent information.

Details

  • MLS#: 3030564
  • County: Davidson County, TN
  • Subd: Buchanan Acres
  • Style: Ranch
  • Stories: 2.00
  • Full Baths: 3
  • Bedrooms: 3
  • Built: 1988 / Existing
  • Lot Size: 2.080 ac

Utilities

  • Water: Public
  • Sewer: Septic Tank
  • Cooling: Electric
  • Heating: Electric

Public Schools

  • Elementary: Henry C. Maxwell Elementary
  • Middle/Junior: Thurgood Marshall Middle
  • High: Cane Ridge High School

Property Information

  • Constr: Brick
  • Floors: Carpet, Concrete, Wood, Tile
  • Garage: 2 spaces / attached
  • Parking Total: 2
  • Basement: Full, Partially Finished
  • Waterfront: No
  • Living: 24x15 / Separate
  • Dining: 14x13 / Separate
  • Kitchen: 13x11 / Eat- in Kitchen
  • Bed 1: 15x13 / Walk- In Closet( s)
  • Bed 2: 11x11
  • Bed 3: 13x11 / Walk- In Closet( s)
  • Den: 27x18 / Separate
  • Patio: Deck, Porch
  • Taxes: $3,555

Appliances/Misc.

  • Fireplaces: 1
  • Drapes: Remain

Features

  • Built-In Electric Oven
  • Cooktop
  • Dishwasher
  • Disposal
  • Dryer
  • Microwave
  • Refrigerator
  • Washer
  • Stair Lift
  • Ceiling Fan(s)
  • High Ceilings
  • Open Floorplan
  • Pantry
  • Walk-In Closet(s)
  • High Speed Internet

Location

Directions

FROM I-65: Exit 71 Concord Rd E, Left on Concord, Right on Nolensville Rd//US-31A, Left on Burkitt—Home 1.1 Mile on Left · FROM I-24: Exit 62 Old Hickory Blvd, Right on Old Hickory (Changes Names to Burkitt) 3.2 Miles Home on Right