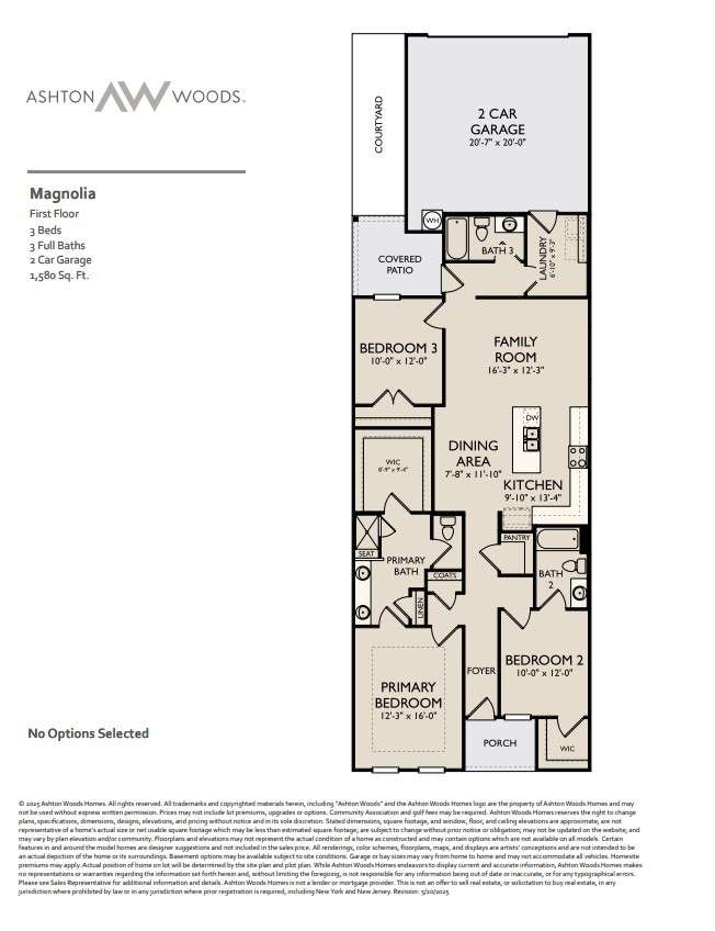
Homesite # 50 - Welcome to the Magnolia, a single- story townhome unit located in the desirable Stewart' s Glen, 55+ community on true end unit with a large open green space. The open- concept living room is suitable for hosting gatherings, and an outdoor covered patio allows for dining together outdoors. The central kitchen includes our Slate collection and boasts a quartz- topped island, pantry, and stainless appliances. The community amenity center is conveniently located across the street, where you can enjoy pickleball, relax on the swings, or picnic with neighbors and friends at the pavilion.
From I-24 E to exit 70/TN102/ Almaville Rd. Turn right onto Almaville Rd. Turn right onto Morton Rd. Turn left onto Rocky Fork Almaville Road. Community on the left. Use model home address 8160 Sidlaw Pass for GPS